泵的知識
立式多級離心泵安裝步驟
發布時間:2021/9/4 20:31:23 來源:龍洋泵閥 閱讀:3
立式多級離心泵安裝步驟:
1. 安裝前檢査水泵和電機的完好惰況.
2. 泵安裝位置應盡可能靠近水源處
3. 泵與底座安裝有兩種方式,一種是直接裝在水泥基礎上的剛性連接,另一種是采用JGD型減振器安裝的柔性連接,具體方法見安裝示意圖所示.
4. 直接安裝可將泵安放在基礎上墊高30-40毫米(準備充填水泥漿之用).然后進行校正,并穿好地腳螺栓,充填水泥砂漿,經3~5天水泥干涸后.重新校正,待水泥完全干涸后,擰緊地腳螺栓的螺母.
5. 安裝管路吋,逬、出水管路都應有各自的支承,不應使泵的法蘭承受過大的管路重量.
6. 泵用于有吸程場合,進水管端應裝有底闥.并且進出口管路不應有過多彎道.同時不得有漏水.漏氣現象存在.
7. 在逬口管路上最好裝有過濾網,以防雜質進入葉輪內部.濾網的有效面積應是進水管面積的3~4倍,以保證液體的自由暢通。
8. 為了維護和使用方便安全,在泵的進.出口管路上各安裝一只調節閥及在泵出口附近安裝一只壓力表.以保證泵在額定范圍內運行,確保泵的正常運行和使用壽命
9.逬口如需擴徑連接,請選用偏心異徑管遒接頭
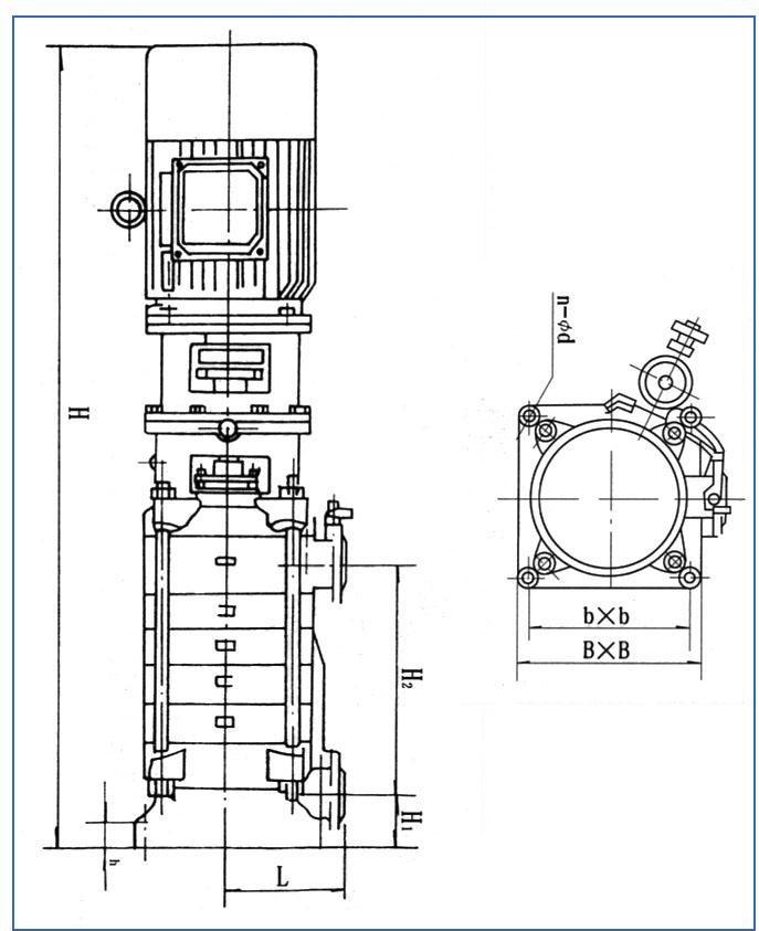
立式多級離心泵安裝尺寸圖:
下一篇:立式多級離心泵的執行標準
上一篇:立式多級離心泵維修注意事項
本文標題:立式多級離心泵安裝步驟
本文地址:http://m.do5a.com/news/ns-205.html
轉載注明:歡迎轉載!轉載請注明本文地址。
免責聲明:本站原創文章,由龍洋泵閥整理發表,部分文章信息來源于網絡以及網友投稿,不代表本站觀點,如您對文章有任何意見歡迎在下方評論處與我們互動溝通。如本站文章和轉稿涉及版權等問題,請作者在及時聯系本站,我們會盡快處理。
本文地址:http://m.do5a.com/news/ns-205.html
轉載注明:歡迎轉載!轉載請注明本文地址。
免責聲明:本站原創文章,由龍洋泵閥整理發表,部分文章信息來源于網絡以及網友投稿,不代表本站觀點,如您對文章有任何意見歡迎在下方評論處與我們互動溝通。如本站文章和轉稿涉及版權等問題,請作者在及時聯系本站,我們會盡快處理。
推薦知識

最新知識
- G型單螺桿泵工作原理及結構圖
- 立式多級離心泵維修注意事項
- 立式多級離心泵及變頻控制柜技術要求
- 消防水泵控制柜技術要求
- 立式多級離心泵常見故障分析及其排除方法
- 立式多級離心泵常見安裝誤區
- GDL型立式多級管道離心泵產品特點及型號參數
- 無負壓給水設備哪家好
- XBD-(I)型立式多級消防泵產品概述及性能參數
- 無負壓給水設備工作原理
- SXBWP無負壓給水設備技術參數表及報價表
- 立式多級離心泵維修注意事項
- 無負壓給水設備的問題點
- 箱式無負壓給水設備特點是什么?
- 哪家無負壓變頻給水設備質量好?
- 無負壓給水設備樣本
- 立式多級離心泵的執行標準
- 立式多級消防泵單機試車方案
- XBD-GDL立式多級泵結構圖
- 無負壓供水設備工作條件哪些?
- 立式多級離心泵常見安裝誤區
- 詳細說明立式多級消防泵的基本操作
- 立式多級給水泵及變頻控制柜技術要求
- 消防水泵控制柜技術要求
- 立式多級離心泵常見故障分析及其排除方法



